Short biography

My work during my honours years has been tailored towards my broader interests in the world of architecture, socio-economics and contemporary environmental issues. Through individual and collaborative projects, design-based and academic writing-based, I have considered the role of people in the built environment as a starting point to my artistic explorations. In doing so, real-world issues have been explored in a philosophical and logistical sense, with creative, progressively environmental and original design emerging as suggestive solutions. 

I would urge those interacting with my page to view the 'Olivia's Portfolio' link to engage with a high-quality, in-depth version of my Architectural Design: Tectonics submission, furthering explaining the relationship of my architectural interests and academic output.

Group spatial strategy expand
Group spatial strategy - render by MLA student groupmate, Wenjie Li, base by myself
Project description

Over 80-year-olds are becoming a key demographic in the UK, with current projections suggesting that this will increase by 82% by 2030. The Covid-19 pandemic has emphasised the requirement for architects to play an active role in almost reinventing the care home environment, with a large portion of the pandemic’s deaths derived from care home environments. This has  only fuelled the wide-reaching negative connotation of care homes as final destinations/last resorts where a sedentary lifestyle strips older, frailer people of any sense of personal control/ownership. There is no better time than now to begin to reframe the perceptions of care homes and this starts with a collaborative approach to architecture. 

Collaborators
Site past, present and future triptych expand
Site - past, present and future triptych
High Street Impression expand
Group Proposal - high street impression
Group Spatial Strategy

Establishing a focal point for Musselburgh’s multiple communities, the group CHoF spatial strategy adopts a concept of ‘density through controlled dispersion’ to generate urban concentration. The proposed high street along the main QMU axis acts as a flourishing urban thoroughfare of intergenerational community interaction, which, at the regional scale, establishes a dialogue with the historic Musselburgh high street. A softer green promenade, approached from the ‘park-side’ or the integrated ‘residential strip’ of the proposal, acts as a wonderful counterpoint.

On this visit, we took site maps that we had prepared in advance of the trip and recorded photographs and notes of certain areas of the site, focussing on the gateways, thresholds and general use. Predominantly, the immediate site was largely underused by pedestrians, apart from the central trodden path and the paths surrounding the perimeter, heading towards and from the other side of the underpass where there is a new housing development. As I drove to the site from outside of Edinburgh, I immediately found issues with the whole QMU area in the complicated vehicular routes/parking. As an outsider to the QMU students/staff and the train staff, there was nowhere to park unless approaching from the other side of the one-way bridge. There are a number of green areas within the QMU development, however, these are underused and, frankly seem like areas that have not been considered. The only difference between these greenspaces and our immediate site was that the grass was cut and well kept, whilst our site is overgrown. 

Site Restraints expand
Aerial sketch - site restraints

Whilst there were restraints to acknowledge, many of these actually became opportunities for us to investigate in the development of the group spatial strategy, as highlighted in the adjacent image. One of the most prominent opportunities was the development of a strong urban grain, spreading from Musselburgh high street.

Site Opportunities expand
Aerial sketch - site opportunities
'Moment drawing' - Urban Hospice by NORD Architects expand
'Moment drawing' - Urban Hospice courtyard, NORD Architects
'Moment drawing' - Bell Street Stables by Collective Architecture expand
'Moment drawing' - Bell Street Stables courtyard, Collective Architecture
'Moment drawing' - Urban Hospice by NORD Architects
'Moment drawing' - Urban Hospice courtyard, NORD Architects
'Moment drawing' - Urban Hospice by NORD Architects
'Moment drawing' - Urban Hospice courtyard, NORD Architects
Extra Care Facility (ECF)

The individual work, the design of an extra care facility (ECF) situated within the broader masterplan, seeks to express the theme of choice and the consideration of affordances in elderly, more active, lifestyles, avoiding a typical sedentary routine. Taking advantage of the greater resident mobility in comparison to those who reside in traditional care homes, various typologies addressing the affordances residents would like to have and access to care that they may at times require were considered for the ECF. The interplay of wishing the socialise at times, but at others, have solitude, was a key consideration.

ECF location plan expand
ECF - location plan
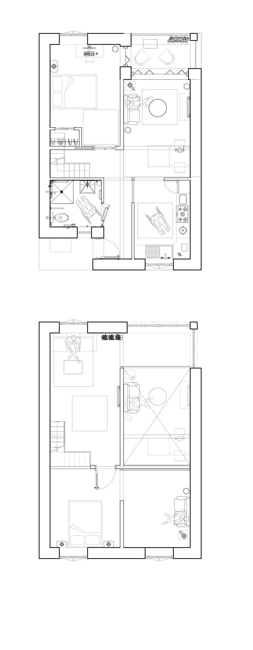
ECF first floor plan expand
ECF - first floor plan
ECF - Design Concepts

Situation – the ECF includes terraced housing cascading towards the South-end woodland. The nursery, positioned between the ECF and care home to the North, brings opportunities for intergenerational interaction within a walled garden at the Western plaza.

 

Typologies – dual aspect deck access flats and storey-and-a-half terraces are employed, featuring a front porch and an external sheltered balcony.

 

Thresholds – the communal ground floor is viewed as a composition of blocks that have been developed over time to define new thresholds for further contemporary functions. Movement, access and stationary points are pivotal. 

 

Courtyard - an external South-East-facing courtyard is inserted between the two wings of flats with a shared surface affording connectivity.

 

Plinth - ramps and level changes facilitate a plinth acting as a viewing platform and walkway to the innovation hub and woodland, with an outdoor community eatery acting as a focal point.

ECF - Individual Dwelling Design

Individual dwellings were designed to be dual aspect, providing residents with a choice of engagement level. Each home (terrace or flat) has a front porch and a balcony towards the rear of the property.

ECF dual aspect flats and terraces expand
ECF - dual aspect flats and terraces
Single person terrace
Individual dwelling - single person terrace
Double person terrace
Individual dwelling - double person terrace
Double person flat expand
Individual dwelling - double person flat
Single person flat expand
Individual dwelling - single person flat
ECF - Structure

The structure is comprised of a steel ground floor with steel supports extending through the lift shafts. This steel grid is used for its flexibility, particularly useful for the ground floor since it is all commercial/ancillary space. On the upper levels however, whilst the floor slab is supported by the lower steel network, the load bearing structure transfer to CLT. CLT was selected for its ease of construction and its acoustic qualities. Coupled wit brick cladding, the structure of the dwellings makes for a comfortable atmosphere for the elderly, completely escaping the noise from the railway.

The main materials used are: 

- CLT (structure)

- Steel (structure)

- Zinc standing seam roof cladding

- Aluminium cladding coated in RAL 7032

- Aluminium curtain walling

- Bristol gold brick

- Charcoal brick slips for deck accesses

ECF structural isometric expand
ECF - structural isometric
ECF exploded isometric expand
ECF - exploded isometric
ECF brick upper to aluminium clad lower expand
ECF - brick upper to aluminium clad lower
ECF window detail expand
ECF - window detail
Skills & Experience
  • Collective Architecture (January 2020 - October 2020)
  • Collective Architecture (January 2021 - May 2021)
  • A leader and a team player - Scotland U18, U21 and Watsonians First XI hockey squad member
  • Efficient - time management has been a strength of mine from the outset of this course and it has stood me in good stead in professional environments thus far
  • Rhino
  • SketchUp
  • Adobe Creative Suite
  • AutoCAD
  • Vectorworks
  • Enscape
Student list
open list
close list