What is the Green Market?

- Vegetarian, Urban Farming, Sustainability...

- It is a market space and community area for local residents and vegetarians who prepare to go 'veggie' to buy ingredients, study what is vegetarian diet and how to eat vegetarian diet correctly, as well as social.

- Also there are many people who misunderstand what vegetarianism is, they perhaps think it is an unhealthy diet which damage our body health and is bland. The Vegetarian Market will be a good place for people to understand vegetarianism correctly and get a chance to taste some delicious vegetarian drinks and meals.

- Last but not least, the Green Market will aim to offer local residents a place to grow their own food and rent plots for them to have their own garden. This aim also meet the goal of local government. What is more, growing locally can help to promote sustainable development because of a net reduction in transportation and waste.

Concept Drawing
Inspiration

- The "Park" concept & The Fibonacci Sequence

Vegetarian and urban farming are both related to greenery, therefore this inspired me to create a space feel like a park and forest.

There is non-visual connection to nature, such as naturally occurring materials, nature elements: a Bee Hive and Fibonacci Sequence. Therefore I am going to use the Fibonacci Sequence in the market design.

Two different directions of inspiration elements was combined to form groups of shapes and blocks that work in the space of the Green Market.

inspiration diagram
Proposed Design Solution

- Diagrams / Plans & Elevations/ Visual Images

Axiomatical Diagram
Gallery Area
Cafe Area
Staircase Area
Buffet Area
Cooking Classroom
Raised Bed Garden Area
plan 2
plan 1
plan 3
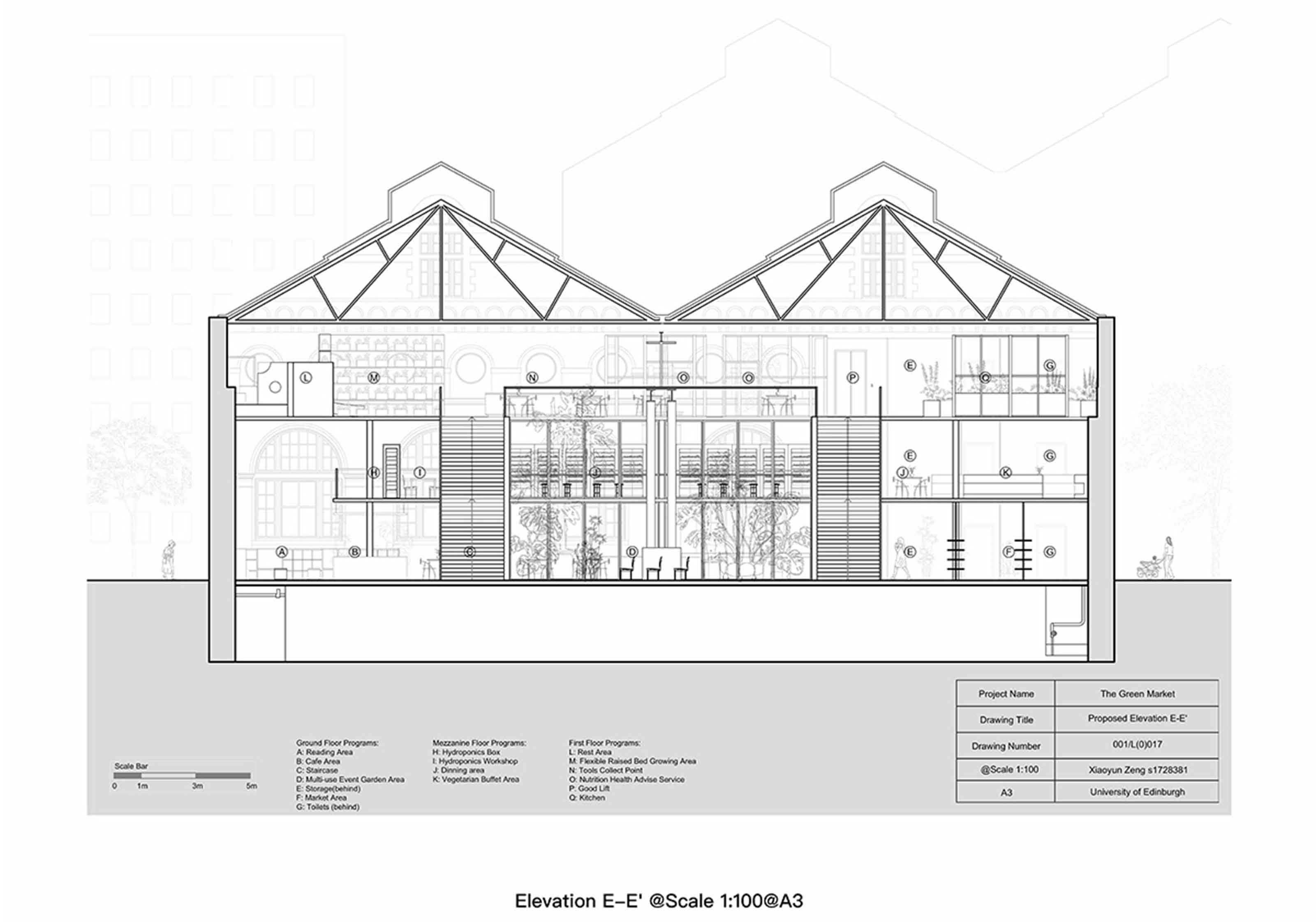
Elevation 1
Elevation 2
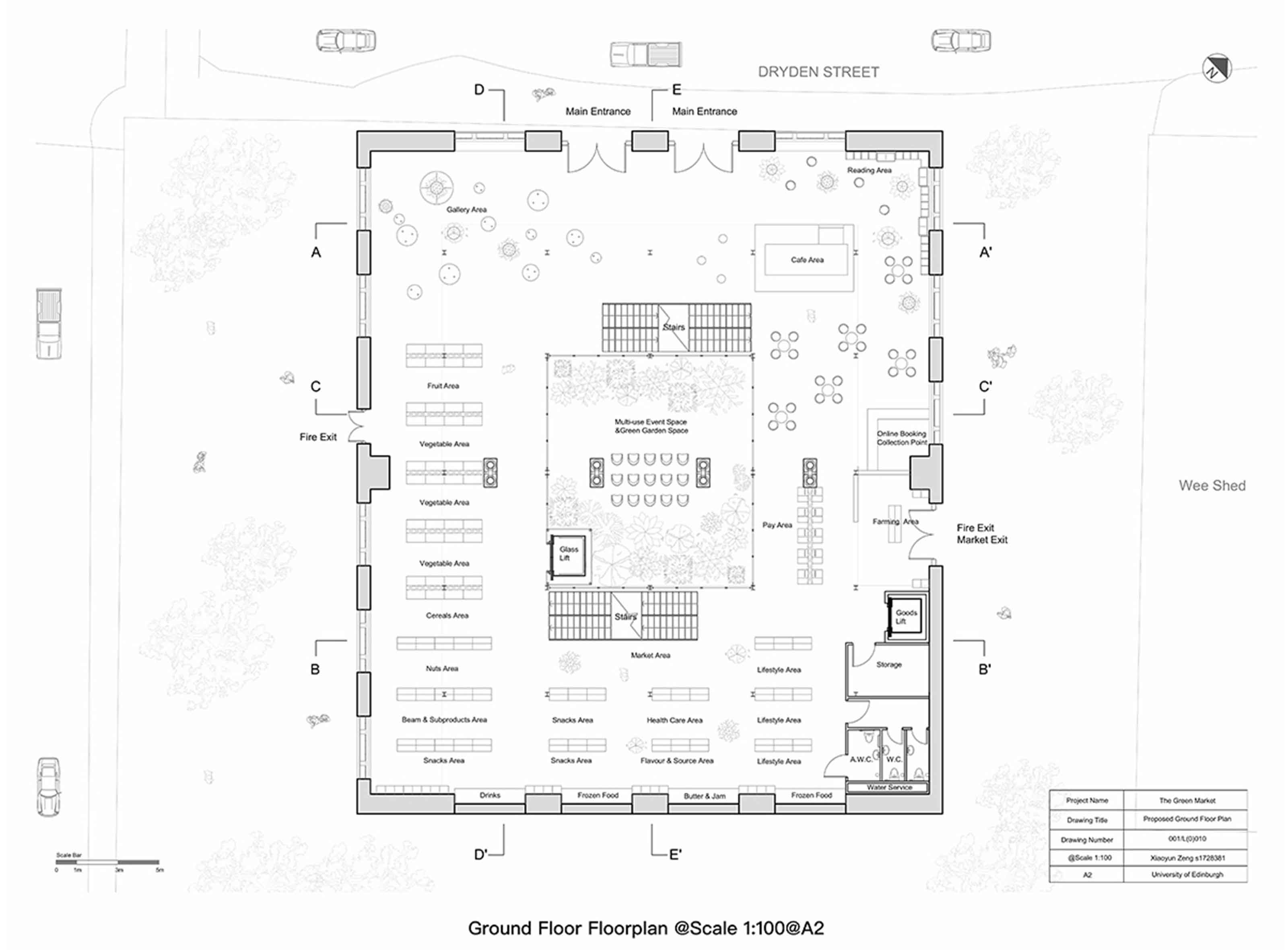
Ground Floor
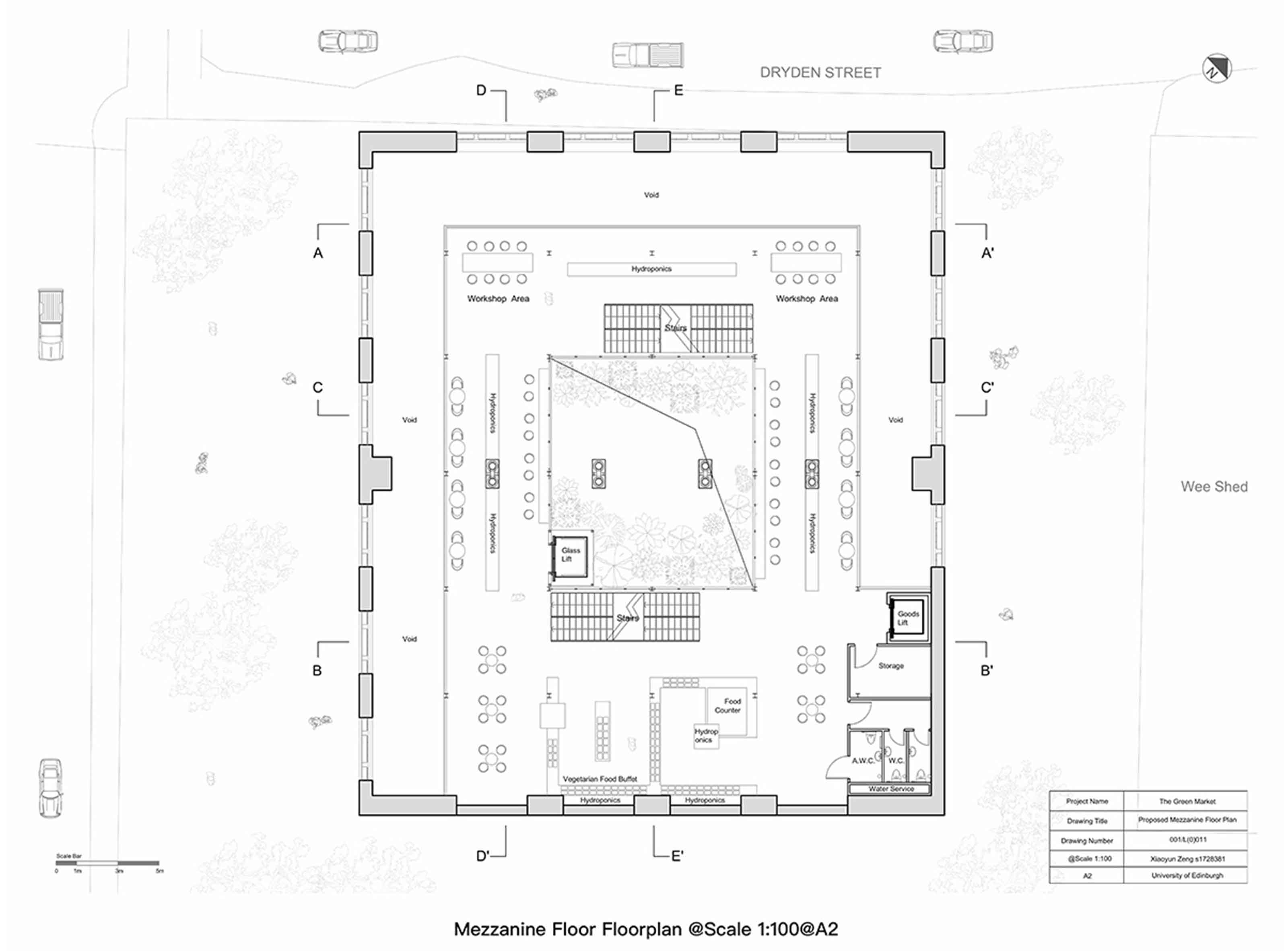
Mezzanine Floor
First Floor